最低訂購量:10組。
交貨日期:訂單確認後,30天完成。
付款條件:電匯T/T、即期L/C。
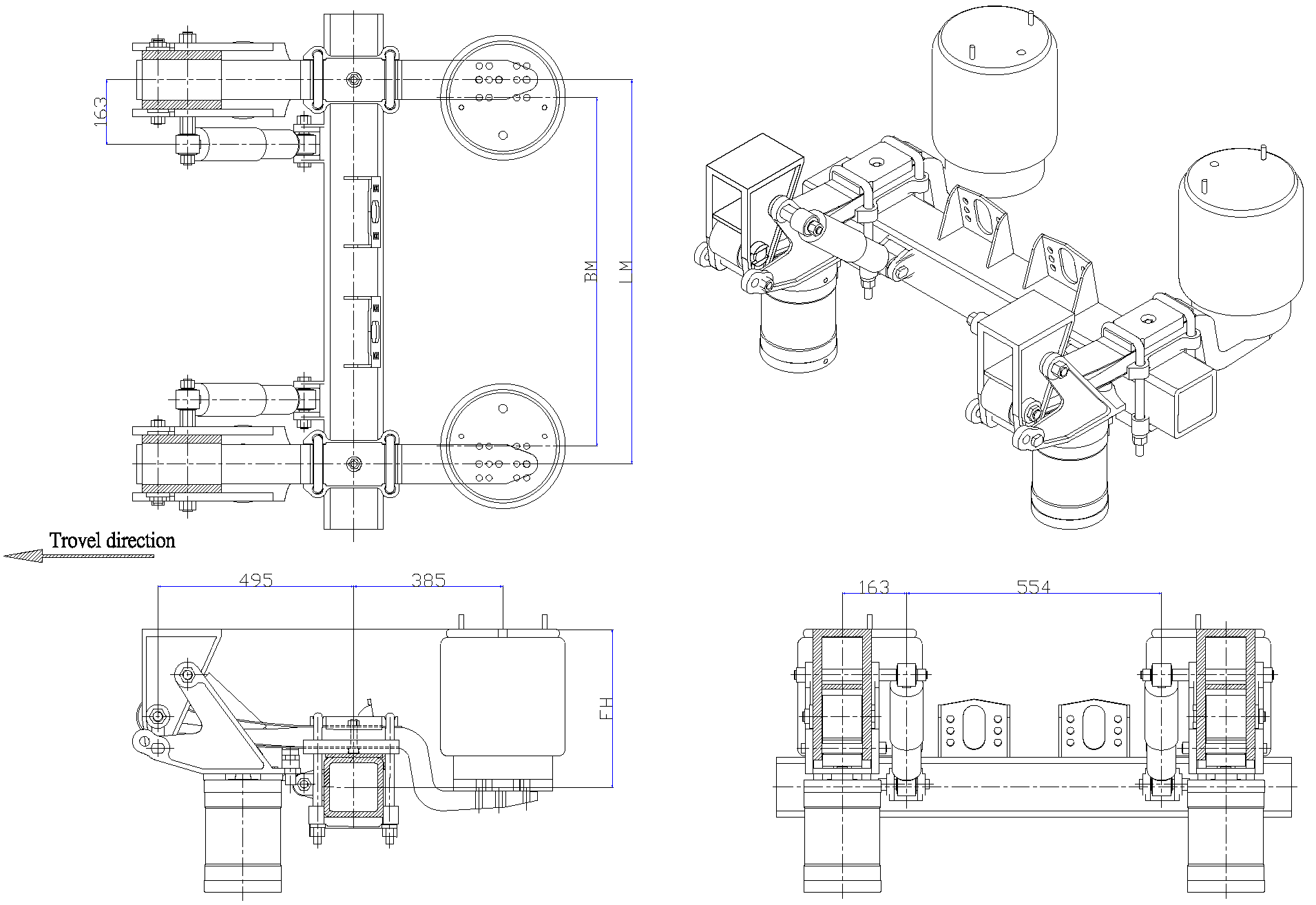
承載能力: 12000kgs。
車軸舉昇速度:20秒內完成動作。
可選擇搭配氣路控制組。
□小氣壓缸與氣墊結合一起的懸吊系統結構是業界獨一創新的設計。
□車軸舉昇、放下速度快,20秒以內完成動作。
□兩側懸架處安裝小氣壓缸提昇裝置,使車軸舉昇速度比一般氣墊式舉昇懸吊系統更快。
□快速的完成車軸舉昇動作有效達到縮短迴轉半徑,節省輪胎磨耗。
□擁有小氣壓缸直接推昇穩定裝置與氣墊避震彈性佳的兩大特性,使其懸吊系統結構穩定、耐用、安全
性能高、避震效果佳。
□簡單、實用的懸吊系統結構設計,容易安裝及維修省時。
□可搭配控制閥系統調節氣流,使氣墊的形狀保持完整不變形延長使用壽命。